Get a quote

No:1 Trusted Builder Property Site.| 100% Quality for sure

2|3BHk Builder floor Apartments for sale in Adambakkam, Secretariat colony

1st crosse st, Secretariat colony, Adambakkam ₹1.48C - 1.48C
₹1.48C

3BHK

1319-1324 Sqft | Flats
Possession Date : Aug 2026
Approved Banks : SBI,HDFC,ICICI,AXIS
Under Construction|3 And 2 BHK Spacious and Premium Apartment
Plenty of Reason To Choose our Project

* Prime Location

* New Launching

* Good Construction Quality

*Easy Main road Exccess 

Briefs

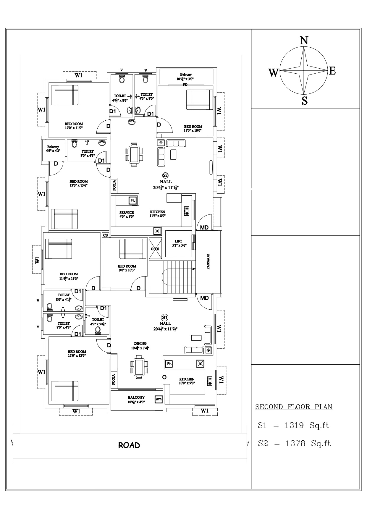
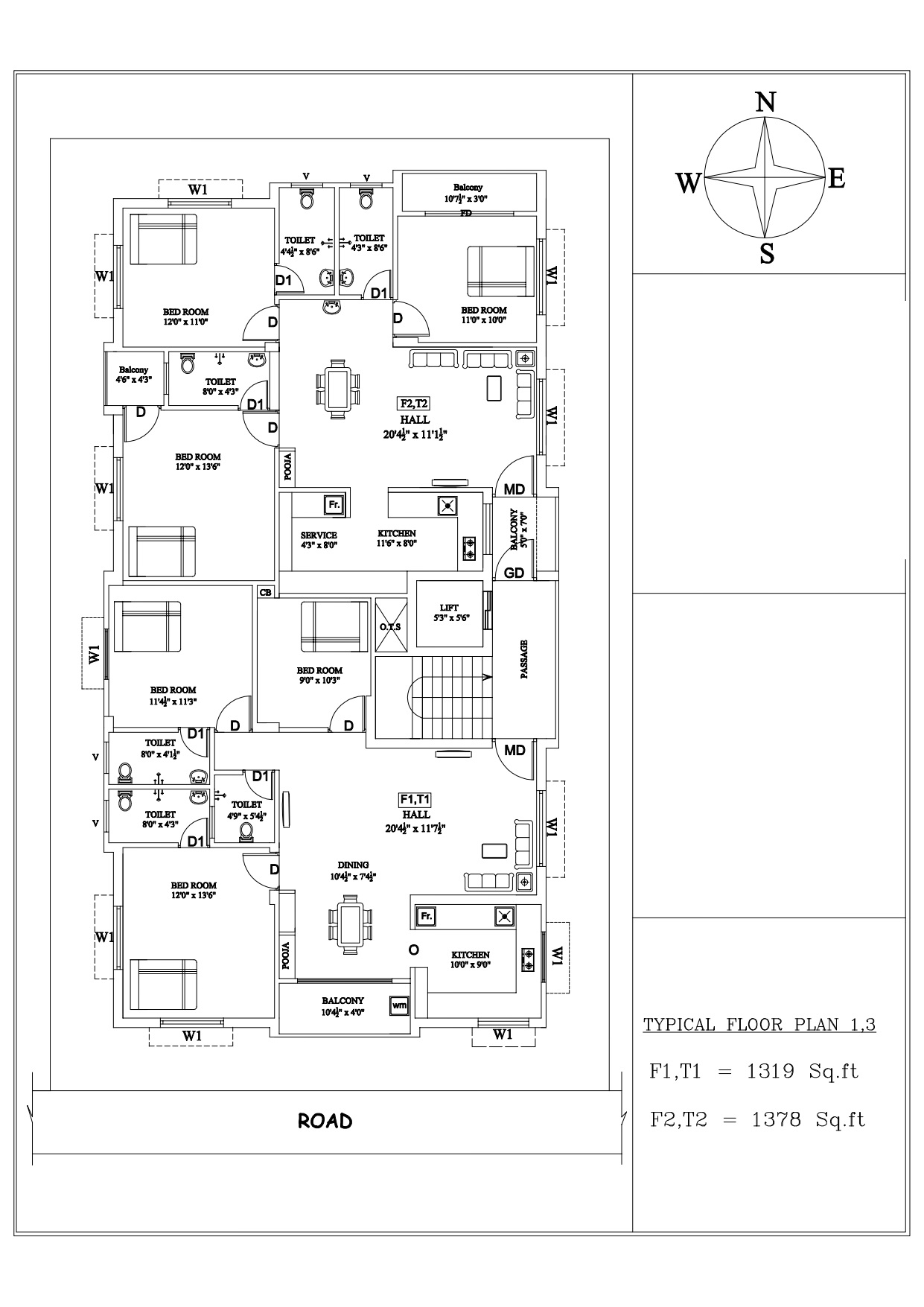
In Adambakkam, Chennai, we have 3BHK Builder Floor Apartment | Flat for sale in Adambakkam, Secetariat colony. Its our Premium Apartment with Livehomes. For your reference, we provided Interior Model  Images and Various floor plans here. This is integrated with the available 2/3BHK layouts from us. The size is between 1319 & 1324 Square feet. Currently, the project is in the New Launching state. The area might be more convenient for Adambakkam Near Adambakkam bus stop . The Live Homes project includes unique amenities like a Lift, CCTV, Covered parking, and other things. Well-made structure, and we're here to offer you first-rate support. Thanks!!

Highlights

Project Type
Flats
Basic Price
₹1.48C
Per SQFT Rate
₹11,200
Unit SQFT Size
1319-1324 Sqft
No. of Bedroom
3 BHK
Facing
East, North
No. of Balconies
2
No. of Units
4
Total no of floors
3
Furnishing Status
Unfurnished
Bath Count
3
Property Type Property Size Property Price
3BHK 1324 Sqft 1.48 Cr
3BHK 1319 Sqft 1.48 Cr

Note: Other cost : GST5% | CCP | Property assessment & Other Tax | REGISTRATION Extra....!

Project plans

Live Photos

Amenities

Car Parking

Car Parking

CCTV

CCTV

Lift

Lift

Power back up

Power back up

Rain water harvesting

Rain water harvesting

Video Door Phone

Video Door Phone

Lift upto Terrace

Lift upto Terrace

Letter box

Letter box

Grill Gate

Grill Gate

As per Vaasthu

As per Vaasthu

Visitors Parking

Visitors Parking

Specifications

  • Electricity Board 3Phase
  • Red Brick
  • Cooling Tile
  • Teak Wood Maindoor
  • Location nearby

  • Adambakkam bus stop in 250mtrs
  • NGO Colony bus stop in 250mtrs
  • Netaji rd junction bus stop in 300mtrs
  • Britto Academy cbse school in 600mtrs
  • Sri Balaji hospital in 7mins
  • Phoenix mall in 10mins
  • Enquire Now

    Blog

    Image 1
    Image 2
    Image 3
    Image 4
    Description of the image

    Download Livehomes App
    and Notification for New Properties

    Play Store Logo iOS App Store Logo

    To Make Your Builder Floor Apartment, flats, Villa, Search convenient and attractive  

    Real Time Experience | Budget friendly Search | Notification as on Date

    Frequently asked questions

    Yes, we offer property management services for landlords who require assistance with managing their rental properties. Our services include finding tenants, collecting rent, handling maintenance issues, and ensuring compliance with legal requirements.

    Construction is the process of building, assembling, or erecting structures, infrastructure, or facilities.

    Look for designers with experience in projects similar to yours, check their portfolio, and ensure they understand your vision and budget.

    Trends vary, but some popular ones include sustainable design, biophilic design (connecting with nature), and minimalist aesthetics.

    The borrower receives a lump sum of money from the lender, which is then repaid over time with interest, typically through monthly payments.

    About Us | Properties | Home Loan | Join Venture | Contact us